Heath Park Community Centre

An amazing opportunity has come along for a community group to take over the lease for the Heath Park community centre

Heath Park community centre is situated at the heart of the community, with residents saying that they want the centre to remain the hub of their community.

In recent community conversations with Heath Park residents they have told us that they want "a space for everyone", and that the centre is available for activities for "older people, young people and families".

More details about how to apply are below and if you have any questions regarding Heath Park Community Centre then please reach out and contact CommunityLettings@lbbd.gov.uk





Applications are now closed






1. Expression of interest

We are delighted to announce that you can now send us your expression of interest for Heath park community centre, if you would like to let us know you are interested or would like more information about what is on offer and what that could mean for you please fill in the 3 or 4 questions fund at the expression of interest link at the bottom of the page, we can then answer your questions.



2. Application

The official application window for the lease to Heath park community centre will open on the 30th of June.


Once the window opens if you would like to apply please go to the application button below to open the form to get you started. We ask you visit the site on the Open Days which are listed below. Once you're confident this space is right for then answer the questions as best you can and please remember to press submit






Click on the image below

to download your application pack






3. Site Visit


Open Days. We encourage anyone who is thinking of applying for lease to visit the site.


The three dates below are confirmed for people to visit the centre and take a look around the space:


Date 1: 20th July 2021 at 14:00 – 17:00 p.m.

Date 2: 24th July 2021 at 14:00 – 17:00 p.m.

Date 3: 27th July 2021 at 11:00 – 14:00 p.m.


Please email communitylettings@lbbd.gov.uk to let us know which date you prefer and arrange times and confirm your attendance so we can create a schedule to show each interested organisation around the site.



4. Interviews


We will shortlist applications via the written application in the first instance and contact successful applicants from that stage for an interview.







F.A.Q


Who can apply?

Once the lease is open to applications a range of people can apply, including community groups, local organisations, not-for-profits, social enterprises and more. We’d happily answer any questions you have going forward, whether you’re an independent social enterprise or a group of local community groups wanting to use the space. Please note that this space is part of residential area and so we cannot accept applications from groups looking to use the space for religious worship due to the size and proximity.

Local residents of Heath Park were involved in Community Conversations, you can see what they said about Heath Park and what they would like to see the space being used for. Click here to see what else residents had said.


What’s the space like?

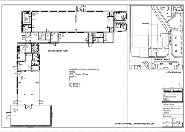
Heath park Community Centre is a traditional community space in the heart of the borough. The ward Councillors' have recently had a new play area installed next to the Centre, which is a well used space that hosts many different community activities.


  • The building comprises a single storey building built in 1940 / 50’s for use as a community hall.

  • It has a self-contained entrance

  • It is a normal shape room, fairly open plan with bathroom facilities.

  • There will be other public spaces on site too such as a play area, benches and communal gardens and paths for people to walk across and through the site

  • The opening times of the space are limited to 8am - 10pm

  • The space will be at a peppercorn rent with an annual service charge which will usually be in the region of £2,500 per annum. You will responsible for the cost of utilities all and all repairs.

  • If you are interested in finding out more please express an interest by completing the form above?






Where is it?


href="https://www.embedgooglemap.net">using google map on website
Google Maps Find local businesses, view maps and get driving directions in Google Maps.



An amazing opportunity has come along for a community group to take over the lease for the Heath Park community centre

Heath Park community centre is situated at the heart of the community, with residents saying that they want the centre to remain the hub of their community.

In recent community conversations with Heath Park residents they have told us that they want "a space for everyone", and that the centre is available for activities for "older people, young people and families".

More details about how to apply are below and if you have any questions regarding Heath Park Community Centre then please reach out and contact CommunityLettings@lbbd.gov.uk





Applications are now closed






1. Expression of interest

We are delighted to announce that you can now send us your expression of interest for Heath park community centre, if you would like to let us know you are interested or would like more information about what is on offer and what that could mean for you please fill in the 3 or 4 questions fund at the expression of interest link at the bottom of the page, we can then answer your questions.



2. Application

The official application window for the lease to Heath park community centre will open on the 30th of June.


Once the window opens if you would like to apply please go to the application button below to open the form to get you started. We ask you visit the site on the Open Days which are listed below. Once you're confident this space is right for then answer the questions as best you can and please remember to press submit






Click on the image below

to download your application pack






3. Site Visit


Open Days. We encourage anyone who is thinking of applying for lease to visit the site.


The three dates below are confirmed for people to visit the centre and take a look around the space:


Date 1: 20th July 2021 at 14:00 – 17:00 p.m.

Date 2: 24th July 2021 at 14:00 – 17:00 p.m.

Date 3: 27th July 2021 at 11:00 – 14:00 p.m.


Please email communitylettings@lbbd.gov.uk to let us know which date you prefer and arrange times and confirm your attendance so we can create a schedule to show each interested organisation around the site.



4. Interviews


We will shortlist applications via the written application in the first instance and contact successful applicants from that stage for an interview.







F.A.Q


Who can apply?

Once the lease is open to applications a range of people can apply, including community groups, local organisations, not-for-profits, social enterprises and more. We’d happily answer any questions you have going forward, whether you’re an independent social enterprise or a group of local community groups wanting to use the space. Please note that this space is part of residential area and so we cannot accept applications from groups looking to use the space for religious worship due to the size and proximity.

Local residents of Heath Park were involved in Community Conversations, you can see what they said about Heath Park and what they would like to see the space being used for. Click here to see what else residents had said.


What’s the space like?

Heath park Community Centre is a traditional community space in the heart of the borough. The ward Councillors' have recently had a new play area installed next to the Centre, which is a well used space that hosts many different community activities.


  • The building comprises a single storey building built in 1940 / 50’s for use as a community hall.

  • It has a self-contained entrance

  • It is a normal shape room, fairly open plan with bathroom facilities.

  • There will be other public spaces on site too such as a play area, benches and communal gardens and paths for people to walk across and through the site

  • The opening times of the space are limited to 8am - 10pm

  • The space will be at a peppercorn rent with an annual service charge which will usually be in the region of £2,500 per annum. You will responsible for the cost of utilities all and all repairs.

  • If you are interested in finding out more please express an interest by completing the form above?






Where is it?


href="https://www.embedgooglemap.net">using google map on website
Google Maps Find local businesses, view maps and get driving directions in Google Maps.



Page published: 23 Jun 2022, 01:29 PM